본문 바로가기
회사소개
인사말
조직도
연혁
오시는 길
사업분야
교육환경평가
교육시설 안전성평가
학생배치계획
통학안전계획
일조권 분석
소음영향평가
수질오염총량 검토
저영향개발 평가
사업실적
완료 프로젝트
진행 프로젝트
알림마당
법령정보
공지사항
자료실
온라인 견적 문의
회사소개
인사말
조직도
연혁
오시는 길
사업분야
교육환경평가
교육시설 안전성평가
학생배치계획
통학안전계획
일조권 분석
소음영향평가
수질오염총량 검토
저영향개발 평가
사업실적
완료 프로젝트
진행 프로젝트
알림마당
법령정보
공지사항
자료실
온라인 견적 문의
ⓒ 다솔이앤씨
사업실적
진행 프로젝트
완료 프로젝트
진행 프로젝트
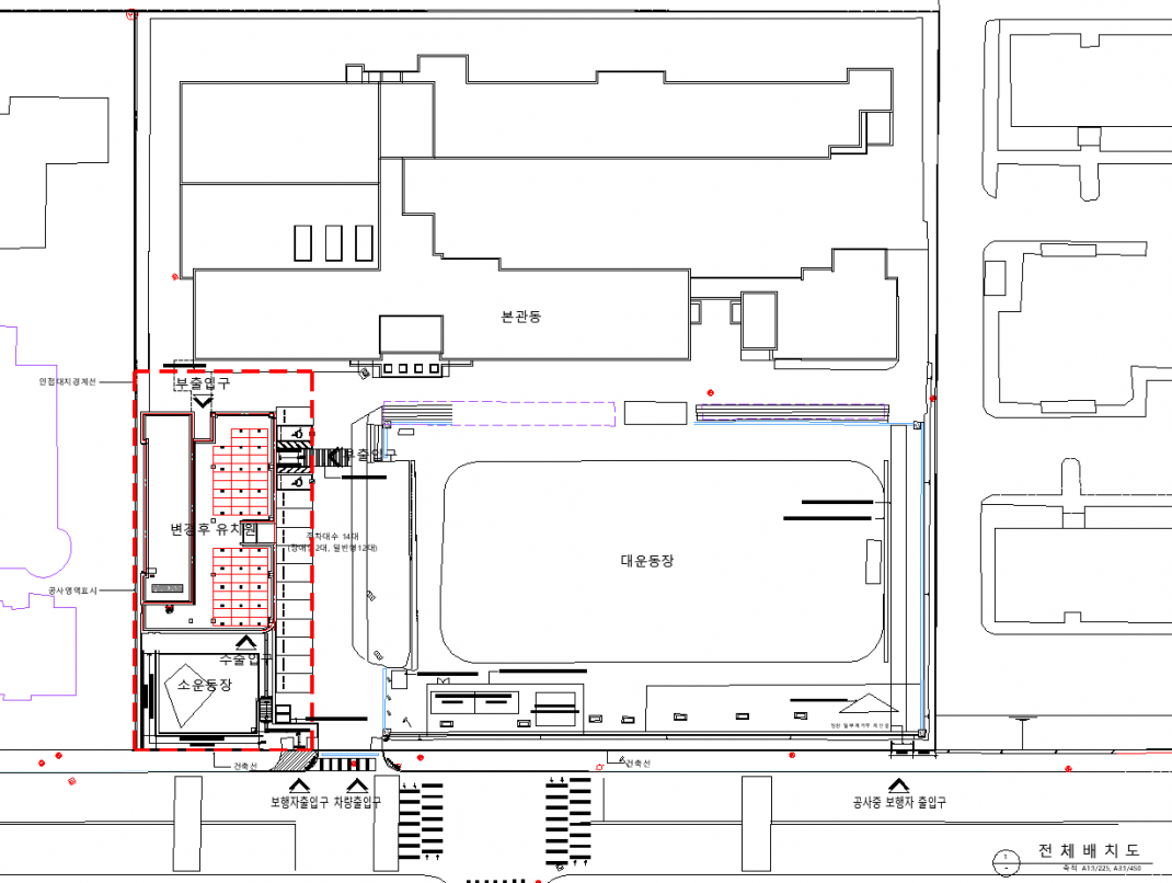
화개초등학교 개축공사
작성자
관리자
등록일
26-01-28
조회
22회
사업영역
교육시설 안전성평가
지역
전라도
본문
화개초등학교 개축공사, 교육시설안전성평가
고양장항 B1블럭 공동주택 신축공사
경주 식물원(라원) 조성사업
목록
QUICK
MENU
견적문의
회사소개
업무실적
전화상담
02-6412-8001
010-8985-5250
이메일 주소
dsenc2016
@naver.com
TOP
02-6412-8001