본문 바로가기
회사소개
인사말
조직도
연혁
오시는 길
사업분야
교육환경평가
교육시설 안전성평가
학생배치계획
통학안전계획
일조권 분석
소음영향평가
수질오염총량 검토
저영향개발 평가
사업실적
완료 프로젝트
진행 프로젝트
알림마당
법령정보
공지사항
자료실
온라인 견적 문의
회사소개
인사말
조직도
연혁
오시는 길
사업분야
교육환경평가
교육시설 안전성평가
학생배치계획
통학안전계획
일조권 분석
소음영향평가
수질오염총량 검토
저영향개발 평가
사업실적
완료 프로젝트
진행 프로젝트
알림마당
법령정보
공지사항
자료실
온라인 견적 문의
ⓒ 다솔이앤씨
사업실적
진행 프로젝트
완료 프로젝트
진행 프로젝트
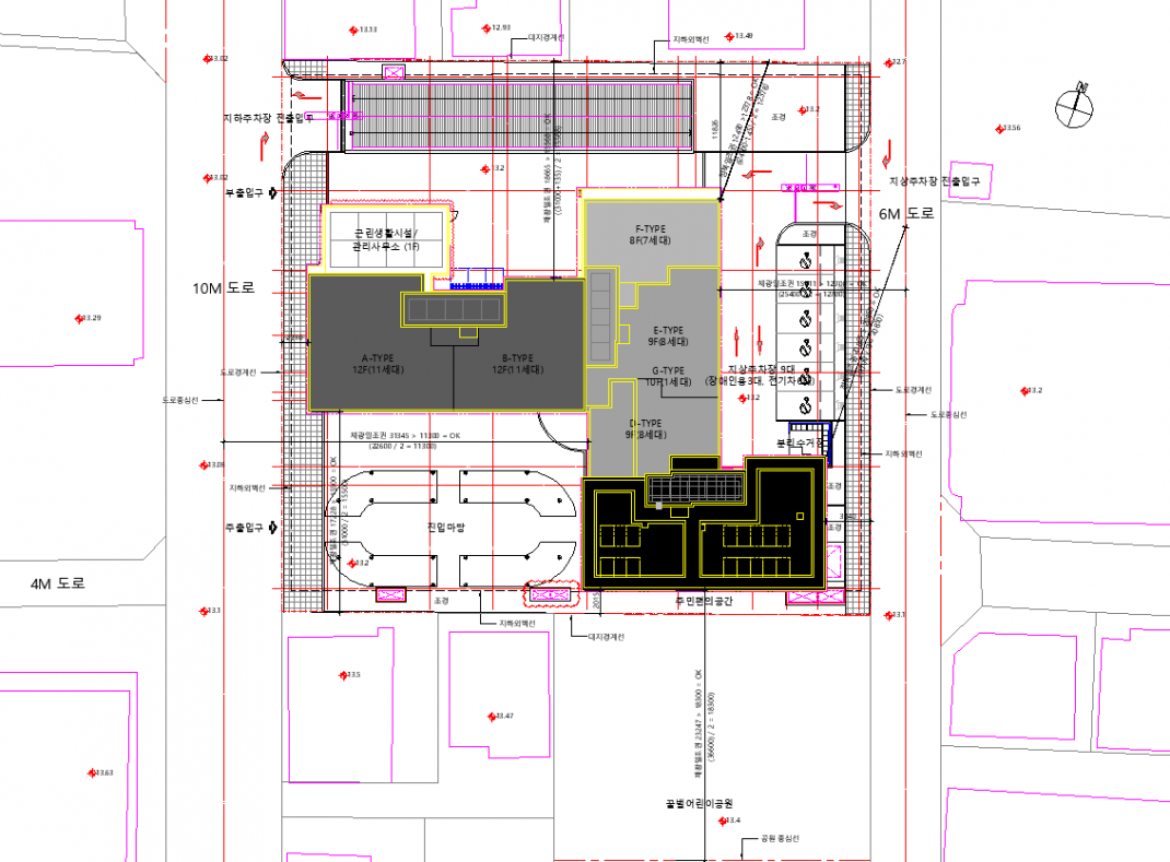
서울특별시 양천구 미도연립 가로주택 정비사업 신축공사
작성자
관리자
등록일
24-12-18
조회
123회
사업영역
수질오염총량 검토,저영향개발 평가
지역
서울
본문
서울특별시 양천구 미도연립 가로주택 정비사업 신축공사, 수질오염총량, 저영향개발
서울특별시 양천구 남도연립 가로주택 정비사업 신축공사
부산광역시 에코델타시티 공동29블럭 공동주택 신축공사
목록
QUICK
MENU
견적문의
회사소개
업무실적
전화상담
02-6412-8001
010-8985-5250
이메일 주소
dsenc2016
@naver.com
TOP
02-6412-8001